Un nouvel outil et de nombreuses améliorations qui sont, une fois de plus, le fruit des suggestions des utilisateurs issues de la page REVIT IDEAS pour lesquelles nous pouvons tous voter.
LES NOUVEAUTES QUI NOUS ONT ENTHOUSIASMES :
1. L'import des fichiers PDF (enfin!)

Onglet Insérer > Rubrique Importer > PDF
Lors de l'importation il faudra veiller si besoin à choisir la/les page(s) à importer et à définir la résolution du document pdf :

Si le pdf doit servir de fond de plan, il faut bien veiller à choisir une bonne résolution.
Cette nouvelle fonctionnalité est un gros avantage pour pouvoir utiliser les PDF vectoriels car il sera possible de sélectionner les lignes du document PDF (pour cela, bien veiller à cocher la case "Activer les accrochages" de la fenêtre de propriétés :

De plus nous avons la possibilité de régler des paramètres d'échelle (horizontale et verticale), plus explicites que les réglages de taille (et cela est également disponible pour les images)2. un nouvel outil : la TRAJECTOIRE DE DEPLACEMENT


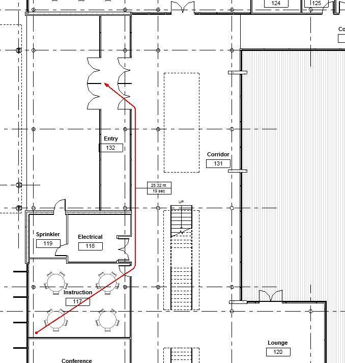
Ceci va permettre de calculer la DISTANCE (mais aussi le temps) de déplacement entre 2 points.
Onglet Analyser > Rubrique Analyse de l'itinéraire > Trajectoire de déplacement
Cliquer, dans une vue en plan sur le point de départ puis le point d'arrivée.
A noter : il est possible d'appliquer automatiquement une étiquette en activant "Etiquette à l'insertion" dans le ruban des options
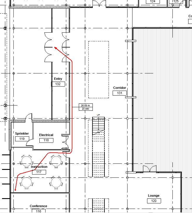
Par défaut, toutes les catégories visibles (sauf les portes) font office d'obstacle. il est possible de modifier cela :
Il suffit de cocher les catégories que l'on souhaite exclure (mobilier dans notre cas)
Il est également possible de régler la plage (hauteur) des obstacles pris en compte.
Trajectoire de déplacement créée avant le changment des paramètres ( le mobilier fait obstacle)
Une fois le reglage fait, il est possible de le mettre à jour : trajectoire de déplacement sélectionnée > Onglet Modifier > Rubrique Analyser > Mise à jour

Il est également possible de d'affecter un autre style de ligne (pour mémoire pour créer un style de ligne : Gérer > Paramètres > Paramètres supplémentaires > Style de ligne. Bouton "Nouvelle" en bas à droite de la boîte "Style de ligne" pour créer une nouvelle sous-catégorie
A noter toutes les propriétés de cette nouvelle catégorie sont exploitables dans des étiquettes et / ou des nomenclatures :

Le nom de la vue dans laquelle la trajectoire de déplacement est placée
Le niveau sur lequel la trajectoire de déplacement est placée
A noter toutes les propriétés de cette nouvelle catégorie sont exploitables dans des étiquettes et / ou des nomenclatures :
Le nom de la vue dans laquelle la trajectoire de déplacement est placée
Le niveau sur lequel la trajectoire de déplacement est placée
L'heure = le temps calculé nécessaire pour parcourir la trajectoire. la vitesse de marche (non paramétrable) est définie sur 1,34m / seconde
L'identifiant qui permet, si besoin de numéroter les trajectoires de déplacement
Un bémol : les escaliers ne sont pas pris en compte (et lorsqu'ils se trouvent sur la trajectoire ils empêchent même de pouvoir la dessiner.
Mise à jour 2020.2 : le problème a été résolu. De plus une nouvelle fonctionnalité a fait son apparition et permet de modifier cette trajectoire qui, par défaut est calculé suivant le chemin le plus court :

- Sélectionner la trajectoire
- Dans le ruban Modifier, cliquer sur "Ajouter un point de passage
3. Le paramètre d'élévation (renommé Elévation par rapport au niveau) est enfin exploitable dans les étiquettes, les nomenclatures et les filtres
Pour mémoire les catégories concernées sont :
Appareil sanitaire / Bouche d'aération / tous les Dispositifs / tous les Equipements / Installation électrique / Luminaire / Meuble de rangement / Mobilier / Modèle générique / Plante / Sprinkler
L'identifiant qui permet, si besoin de numéroter les trajectoires de déplacement
Un bémol : les escaliers ne sont pas pris en compte (et lorsqu'ils se trouvent sur la trajectoire ils empêchent même de pouvoir la dessiner.
Mise à jour 2020.2 : le problème a été résolu. De plus une nouvelle fonctionnalité a fait son apparition et permet de modifier cette trajectoire qui, par défaut est calculé suivant le chemin le plus court :

- Sélectionner la trajectoire- Dans le ruban Modifier, cliquer sur "Ajouter un point de passage
- Cliquer sur la trajectoire pour ajouter un point
- Déplacer ce point
3. Le paramètre d'élévation (renommé Elévation par rapport au niveau) est enfin exploitable dans les étiquettes, les nomenclatures et les filtres
Pour mémoire les catégories concernées sont :
Appareil sanitaire / Bouche d'aération / tous les Dispositifs / tous les Equipements / Installation électrique / Luminaire / Meuble de rangement / Mobilier / Modèle générique / Plante / Sprinkler
LES AMELIORATIONS APPRECIABLES :
4. La possibilité de créer des murs ellitiques (l'outil de dessin ellipse est maintenant disponible dans la palette de création des murs)
5. la très nette amélioration des imports des fichiers Sketchup avec :
- la prise en compte des versions plus récentes
- la conservation des textures, couleurs et éléments du modèle Sketchup
6. La réalisation de zoom dynamique dans les nomenclatures grâce à des raccourcis (intégration depuis Revit 2019.2) :
- Touche "Ctrl" + molette avant de la souris pour zoomer
- Touche "Ctrl" + molette arrière de la souris pour dézoomer
- Touche "Ctrl" + "0" pour revenir à l'affichage initial
7. l'amélioration des conditions de filtrage
- Lorqu'une règle fait référence à plusieurs catégories, nous ne sommes plus contraints d'utiliser les paramètres communs aux catégories sélectionnées.
- Tous les paramètres peuvent être utilisées dans la règle.
- Deux nouveaux opérateurs font leur apparition : A une valeur et N'a pas de valeur
8. l'amélioration de l'interface des matériaux

- un nouveau filtrage par classe
- La possibilité d'agrandir les vignettes d'aperçu dans les bibliothèques
-L'ajout de nouvelles ressources d'apparence de matériaux
9. la fonction COPIER / COLLER disponible pour les légendes placées sur les feuilles.
Cela permet de placer une légende sur plusieurs feuilles et de les "Aligner sur le même emplacement".
10. La possibilité d'utiliser les définitions de zones à partir d'une nomenclature "Liste des vues".
Ceci permet de simplifier le processus d'application d'une zone de définition aux vues.

11. L'alignement des coupes (amélioration Revit 2019.1)
Il est dorénavant possible d'utiliser la commande Aligner avec les coupes avec la possibilité de sélectionner la ligne de coupe comme référence ou comme objet à aligner.
POUR LES UTILISATEURS DE BIM 360 :
4. La possibilité de créer des murs ellitiques (l'outil de dessin ellipse est maintenant disponible dans la palette de création des murs)
5. la très nette amélioration des imports des fichiers Sketchup avec :
- la prise en compte des versions plus récentes
- la conservation des textures, couleurs et éléments du modèle Sketchup
6. La réalisation de zoom dynamique dans les nomenclatures grâce à des raccourcis (intégration depuis Revit 2019.2) :
- Touche "Ctrl" + molette avant de la souris pour zoomer
- Touche "Ctrl" + molette arrière de la souris pour dézoomer
- Touche "Ctrl" + "0" pour revenir à l'affichage initial
7. l'amélioration des conditions de filtrage
- Lorqu'une règle fait référence à plusieurs catégories, nous ne sommes plus contraints d'utiliser les paramètres communs aux catégories sélectionnées.
- Tous les paramètres peuvent être utilisées dans la règle.
- Deux nouveaux opérateurs font leur apparition : A une valeur et N'a pas de valeur
8. l'amélioration de l'interface des matériaux

- un nouveau filtrage par classe
- La possibilité d'agrandir les vignettes d'aperçu dans les bibliothèques
-L'ajout de nouvelles ressources d'apparence de matériaux
9. la fonction COPIER / COLLER disponible pour les légendes placées sur les feuilles.
Cela permet de placer une légende sur plusieurs feuilles et de les "Aligner sur le même emplacement".
10. La possibilité d'utiliser les définitions de zones à partir d'une nomenclature "Liste des vues".
Ceci permet de simplifier le processus d'application d'une zone de définition aux vues.

11. L'alignement des coupes (amélioration Revit 2019.1)
Il est dorénavant possible d'utiliser la commande Aligner avec les coupes avec la possibilité de sélectionner la ligne de coupe comme référence ou comme objet à aligner.
POUR LES UTILISATEURS DE BIM 360 :
12. Amélioration de la page d'accueil qui permet plus facilement d'exporter ou d'ouvrir des fichiers non collaboratifs depuis le cloud
13. Publication des vues 3D, 2D et des feuilles directement depuis la page d'accueil
LES AMELIORATIONS QUI RAVIRONT LES UTILISATEURS MEP :
14. la clarification des informations "Contraintes" avec l'indication des arases hautes et basses dorénavant disponible pour les canalisations (disponible pour les gaines et chemins de câbles depuis revit 2019.2)

A noter : Revit utilise à présent le diamètre externe pour déterminer l'élévation du bas
15. Pour améliorer l'ergonomie, plusieurs paramètres permettant de spécifier le décalage et l'élévation ont été renommés et déplacées vers la palette de propriétés :
- le paramètre Décalage a été renommé Elévation du milieu
- le paramètre Décalage de départ a été renommé Elévation centrale de départ
- le paramètre Décalage de extrémité a été renommé Elévation centrale de fin
En electricité :
16. La possibilité de raccorder un tableau électrique depuis un autre tableau (raccordement direct ou via un disjoncteur)
17. La possibilité de personnaliser les flèches de renvoi vers les tableaux
18. La prise en charge du paramètre Elévation dans les étiquettes, les nomenclatures et les filtres ((nouveauté mentionnée précédemment mais qui va grandement simplifier les choses).
POUR LES PROGRAMMATEURS DANS L'AME :
19. une nouvelle version de Dynamo pour Revit : 2.1. Pour pour plus de détails : A propos de Dynamo Revit
LES AUTRES NOUVEAUTES QUE NOUS NE DETAILLERONS PAS ICI CONCERNENT :
20. Les ferraillages
21. Les assemblages métalliques
22. La création d'éléments à partir de modèles importés d'Infraworks
CONCLUSION :
Ces nouveautés vont encore améliorer le confort d'utilisation de Revit mais le cru 2020 ne constitue pas une révolution.
Bref après déballage la petite fille que je suis ne s'est pas exclamée "Whouaaaouuu" devant aucune de ces nouveautés mais est tout de même contente de son nouveau jouet car il y a tout de même beaucoup de points améliorés
LES AMELIORATIONS QUI RAVIRONT LES UTILISATEURS MEP :
14. la clarification des informations "Contraintes" avec l'indication des arases hautes et basses dorénavant disponible pour les canalisations (disponible pour les gaines et chemins de câbles depuis revit 2019.2)

A noter : Revit utilise à présent le diamètre externe pour déterminer l'élévation du bas
15. Pour améliorer l'ergonomie, plusieurs paramètres permettant de spécifier le décalage et l'élévation ont été renommés et déplacées vers la palette de propriétés :
- le paramètre Décalage a été renommé Elévation du milieu
- le paramètre Décalage de départ a été renommé Elévation centrale de départ
- le paramètre Décalage de extrémité a été renommé Elévation centrale de fin
En electricité :
16. La possibilité de raccorder un tableau électrique depuis un autre tableau (raccordement direct ou via un disjoncteur)
17. La possibilité de personnaliser les flèches de renvoi vers les tableaux
18. La prise en charge du paramètre Elévation dans les étiquettes, les nomenclatures et les filtres ((nouveauté mentionnée précédemment mais qui va grandement simplifier les choses).
POUR LES PROGRAMMATEURS DANS L'AME :
19. une nouvelle version de Dynamo pour Revit : 2.1. Pour pour plus de détails : A propos de Dynamo Revit
LES AUTRES NOUVEAUTES QUE NOUS NE DETAILLERONS PAS ICI CONCERNENT :
20. Les ferraillages
21. Les assemblages métalliques
22. La création d'éléments à partir de modèles importés d'Infraworks
CONCLUSION :
Ces nouveautés vont encore améliorer le confort d'utilisation de Revit mais le cru 2020 ne constitue pas une révolution.
Bref après déballage la petite fille que je suis ne s'est pas exclamée "Whouaaaouuu" devant aucune de ces nouveautés mais est tout de même contente de son nouveau jouet car il y a tout de même beaucoup de points améliorés
